Envirotechnik
Votre référence en conception de champs septiques en Outaouais et dans les régions avoisinantes
Envirotechnik
Est une firme de Technologues Professionnels se spécialisant en services techniques en environnement et géotechnique. Nos domaines d'expertise sont : la conception et l’élaboration de plans et devis d’éléments épurateurs, les plans de drainage, la surveillance de chantier, ainsi que les relevés topographiques.
Solutions pour tous
Que vous soyez un nouveau propriétaire ayant besoin d’un devis septique pour l’obtention d’un permis de construction ou un propriétaire d’une résidence existante non desservie par le réseau d’égout municipal, Envirotechnik peut vous aider.
Équipements performants, résultats fiables
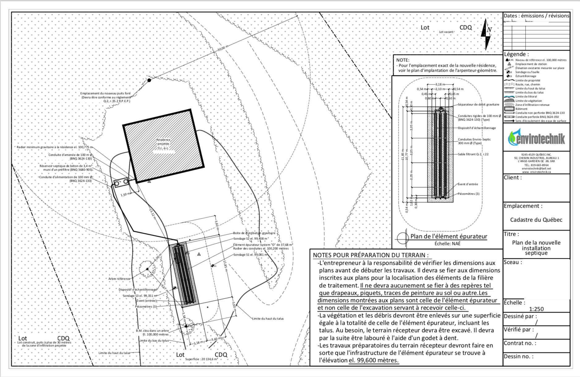
Notre priorité est d’assurer la satisfaction de tous nos clients. C’est pourquoi nous utilisons des équipements à la fine pointe de la technologie nous permettant d’obtenir des relevés topographiques approfondis et des plans détaillés.
Mission
Chez Envirotechnik, notre mission est de devenir la référence en
conception de
traitement des eaux usées pour les résidences isolées. Nous proposons des
solutions qui sont à la fois économiques et adaptées à vos besoins.





